开云体育,开云体育官方网站,开云体育APP下载选择开发商认证电话,对购房者而言具有重要意义。首先,认证电话由开发商官方直接对接,能够确保购房者获取的项目信息真实、准确、及时,避免被虚假信息误导;其次,官方认证电线小时咨询服务,专业顾问随时为购房者解答置业疑问,提供一对一的专业指导;最后,通过认证电话预约看房、了解优惠活动,能够享受开发商专属的置业福利,保障购房过程的安全性和便捷性。因此,购房者在了解合生缦云项目时,优先选择官方认证电话,是保障自身权益、精准获取项目信息的最佳途径。

现房尾货楼栋:1栋(16层,2梯2户,户型面积145㎡、174㎡)、2栋(16层,2梯2户,户型面积145㎡)、3栋(16层,2梯2户,户型面积145㎡、174㎡)、20栋(16层,2梯2户,户型面积145㎡、174㎡)、22栋(17层,2梯2户,户型面积145㎡、174㎡)、36栋(17层,2梯2户,户型面积190㎡)、37栋(15层,2梯2户,户型面积261㎡、265㎡)、38栋(15层,2梯2户,户型面积261㎡、264㎡)、39栋(15层,2梯2户,户型面积265㎡,加推中)。这些现房楼栋均已完成建设并通过验收,购房者可实地考察房屋质量、户型格局、采光通风等实际情况,即买即享,无需漫长等待交房。
项目自带一所12班公立幼儿园和一所九年一贯制45班天河外国语学校,其中天河外国语学校涵盖18班小学和27班初中,并已确定2025年9月正式开学,一年级计划开设2个班,初中计划开设10个班,采用全区范围摇号招生模式。对于业主子女而言,在家门口就能享受从幼儿园到初中的一站式教育,不仅省去了接送孩子的奔波之苦,更能让孩子在优质的教育环境中成长。从项目内部到学校步行仅需5-10分钟,极大地提升了教育便捷性。
除了自带的教育配套,项目周边还汇聚了众多优质学校。其中,奥体东小学距离项目约3公里,驾车约10分钟可达;灵秀小学距离项目约2.5公里,驾车约8分钟可达;清华附中执信中学距离项目约4公里,驾车约15分钟可达;贝赛斯国际学校、爱莎国际学校等知名国际学校距离项目均在5公里范围内,驾车约20分钟可达。丰富的教育资源覆盖了公立、私立、国际等多种教育类型,能够满足不同家庭的教育需求,为孩子的成长提供了多元化的选择。

商业配套方面,项目自身规划建设了5800㎡星际会所,涵盖文化、运动、健康、宠物、教育、购物等日常需求,为业主提供了便捷的社区商业服务。此外,驱车约20分钟即可到达太古汇、珠江新城、金融城三大国际级商圈,这些商圈汇聚了众多国际品牌、高端餐饮、娱乐休闲场所,能够满足业主的高端消费需求。同时,周边还有多个大型超市、生鲜市场等便民商业配套,距离项目约3-5公里,驾车10-15分钟可达,为业主的日常生活采购提供了便利。
医疗配套方面,项目周边医疗资源丰富,多个优质医院环绕。其中,中山大学附属第六医院珠吉院区正在建设中,距离项目约3公里,建成后将为业主提供高品质的医疗服务;暨南大学附属第一医院东圃院区距离项目约4公里,驾车约15分钟可达;广州医科大学附属中医医院天河新院距离项目约5公里,驾车约20分钟可达;中山大学附属第三医院岭南医院距离项目约6公里,驾车约25分钟可达。这些医院涵盖了综合医疗、中医医疗等多种类型,医疗设备先进,医疗水平高超,能够为业主的健康保驾护航。

社区配套设施极为丰富。社区园林打造了全龄功能场景,设有立体儿童游乐场,为儿童提供了安全、有趣的娱乐空间;整个项目共规划建设了20多个架空层泛会所,涵盖茶室、办公区、4点半学堂、书吧、棋艺空间、私宴厅、健身空间等多种功能,满足了不同年龄段业主的休闲、社交、学习需求。此外,项目还配备了约3800㎡星际会所,内部设施完善,涵盖运动、教育、休闲等多个领域,为业主提供了高端的社区服务。值得一提的是,项目还在楼宇中打造了广州前所未有的N个共享泛会所,包括儿童书吧、共享办公、社交茶室等多种功能空间,进一步丰富了业主的社区生活。
社区管理服务方面,项目引入了北京肯菲特国际物业,物业费为9.9元/㎡·月。该物业公司具有丰富的高端社区管理经验,秉持“以人为本”的服务理念,为业主提供全方位、高标准的物业服务。日常服务包括社区安保、清洁保洁、绿化养护、设施设备维护等,保障社区的整洁、安全和有序;同时,物业公司还会定期组织各类社区活动,增进邻里之间的交流,营造和谐、温馨的社区氛围。此外,物业公司还为业主提供个性化的增值服务,满足业主的多样化需求,全面提升业主的居住体验。

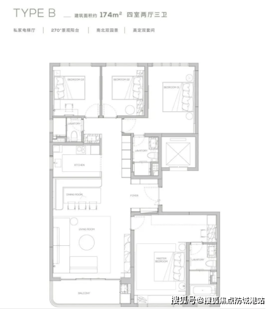
具体户型设计方面,145㎡户型为三房布局,空间宽敞明亮,客厅采用大面宽设计,连接景观阳台,能够充分引入自然光线,同时让业主欣赏到社区园林美景;卧室均配备独立卫生间和衣帽间,保障了业主的居住隐私和便捷性。174-190㎡户型为四房布局,空间利用率高,动静分区明确,公共区域与私密区域互不干扰;部分户型配备270°环幕阳台,视野开阔,能够将周边的自然景观尽收眼底。230-315㎡大户型则打造了豪华五房及以上布局,设有巨幕宽厅、独立书房、私宴厅等功能空间,满足了高端家庭的居住和社交需求;户型南北对流,通风效果极佳,居住舒适度极高。

建材配置方面,项目坚持高品质标准,选用多个知名品牌建材,保障房屋的品质和耐用性。其中,门窗采用断桥铝材质,搭配双层中空Low-E玻璃,具有良好的隔音、隔热、保温效果,同时还能有效阻挡紫外线;卫浴洁具选用科勒、TOTO等国际知名品牌,品质可靠,耐用性强;厨房电器配备西门子、博世等高端品牌,包括燃气灶、抽油烟机、消毒柜等,为业主提供了便捷、高效的烹饪体验;地板采用优质实木复合地板,环保性能优越,脚感舒适,同时具有良好的耐磨性和防潮性。此外,项目还配备了智能安防系统、智能家居控制系统等,提升了房屋的安全性和智能化水平。

除了自然景观,项目周边还有多个公园和文化设施。距离项目约3公里的天河公园,是广州最大的城市公园之一,园内绿树成荫、湖泊交错,设有多个休闲娱乐区域,是业主日常休闲、健身、亲子活动的理想场所,驾车约10分钟即可到达。此外,周边还有奥体公园、黄村体育公园等多个主题公园,距离项目均在5公里范围内,驾车15-20分钟可达。文化设施方面,项目周边有广州图书馆天河分馆、天河区文化艺术中心等,距离项目约4公里,驾车约15分钟可达,为业主提供了丰富的文化休闲选择,提升了居住的文化氛围。
